图解:电缆桥架怎么安装?(3)

yyqadmin 2019-06-15 23:10 实用技术

图解:电缆桥架怎么安装?

图解:电缆桥架怎么安装?

(5)电缆桥架应敷设在易燃易爆气体管和热力管道的下方,当设计无要求时,与管道的最小净距,符合12.3.1.5(5)的规定。

图解:电缆桥架怎么安装?

图解:电缆桥架怎么安装?

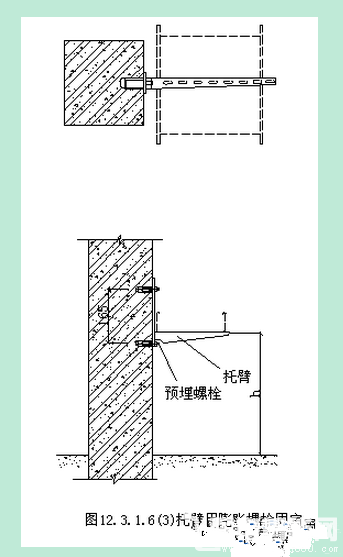
6.托臂安装:

托臂是直接支承托盘、梯架单独固定的刚性部件,托臂有螺栓固定可预埋螺栓,也可采用膨胀螺栓,也可卡接,如图12.3.1.6(1)、(2)、(3)、(4)、(5)。

图解:电缆桥架怎么安装?

图解:电缆桥架怎么安装?

图解:电缆桥架怎么安装?

图解:电缆桥架怎么安装?

图解:电缆桥架怎么安装?

图解:电缆桥架怎么安装?

图解:电缆桥架怎么安装?

图解:电缆桥架怎么安装?

图解:电缆桥架怎么安装?

图解:电缆桥架怎么安装?

桥架安装:

1.直线段钢制电缆桥架长度超过30m,铝合金或玻璃钢制电缆桥架长度超过15m应设有伸缩节,跨越伸缩缝处设置补偿装置,可用带伸缩节的桥架.

上一篇:为什么强电与弱电它们要保持至少30公分的距离?
下一篇:卫星天线及有线电视系统安装作业指导书

猜你喜欢

手机扫一扫添加微信

13594006930