

3、吊顶安装方式
当跳纤需要走过较长的距离,途中没有设备提供支撑,而跳纤经过的路径离墙比较远时,可以将膨胀螺钉钉入天花板内,利用附件支撑槽道。此安装方式走线比较灵活,不受机房内设备位置的限制,但必须确定此天花板牢固足以承受槽道及跳纤的重量。


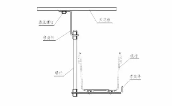
4、利用行架安装方式
当配线架处于行架的下方时,可以利用行架固定槽道支撑杆,将槽道有效的连接起来。


六、如何区分ABS光纤槽道和PVC光纤槽道
网上关于ABS光纤槽的广告太多了,实际上国内生产光纤槽道的厂家很少,网上大多数是转卖的公司,能够生产ABS或者PC/ABS光纤槽的就更少了,由于PVC光纤槽道几年后就会老化、变脆,严重影响机房的光纤通信安全,为了让大家不要上当,下面分享区分ABS光纤槽和PVC光纤槽的简单方法。
1、PVC学名聚氯乙烯,含有氯元素,常温下会慢慢地释放氯气,在温度达60°C左右或以上时,大量释放氯气,对人体有害。PVC的主要缺点是几年以后就会老化、变脆。
PVC不能直接生产光纤槽道,PVC中必须掺杂碳酸钙才有可能生产出光纤槽道。PVC的比重在1.33克/立方厘米左右,掺了碳酸钙的PVC比重在1.6克/立方厘米以上。
2、ABS是丙烯腈-丁二烯-苯乙烯共聚物的简称,是由丙烯腈,丁二烯和苯乙烯组成的三元共聚物。ABS具有优良的综合物理和机械性能,极 好的低温抗冲击性能和良好的稳定性。ABS的比重在1.05克/立方厘米 到1.1克/立方厘米之间。
PC/ABS的合金克服了PC和ABS两种原料自身的缺点,发扬对方的优点,将两者共混后,提高了ABS的耐热性、韧性、冲击强度、阻燃性,改善了PC加工性能,降低了生产成本。PC/ABS合金的比重在1.1克/立方厘米到1.2克/立方厘米之间。 因为PVC的毒性及易分解老化的特性,我国在上世纪九十年代就已经规定聚氯乙烯不得用于自来水管等于民生有关的产品。国外限于欧盟RoHS2.0指令和低烟无卤的要求,基本上禁止使用PVC材质的光纤槽道。我国内运营商要求厂家提供ABS材质的光纤槽道。


根据以上对ABS、PC/ABS、PVC光纤槽道的介绍,我们就可以很容易地区分了:
1、 看重量:同样2.8-3.0mm厚度的240光纤槽道重量在4公斤 左右的,可以判定为ABS或PC/ABS光纤槽道;重量在6公斤以上的就是PVC光纤槽道。
2、 燃烧:用打火机烧光纤槽道,有烧橡胶的气味、黄色火焰、有黑烟,有明显的熔融沸腾现象的,冷却后胶体凝结在槽体上且不易用手擦去的,是ABS或PC/ABS光纤槽道;有盐酸挥发的刺激气味、黄中带绿色火焰,熔融沸腾现象不明显,冷却后结块的物质容易用手擦除的,是PVC光纤槽道。
3、 最好的方法是送检测机构检测,费用不高,很准确地判定材质。
